欢迎来到 涿州房产网![登录] [注册]

华阳路107(板楼大四居,家电空调齐全,全明户型)呈颐园

家具齐全 学校周边 商业用房 随时看房 发布时间:2025-05-16 367人已浏览

1200 元/月 房源编号:4510305430 付押方式:付三押一

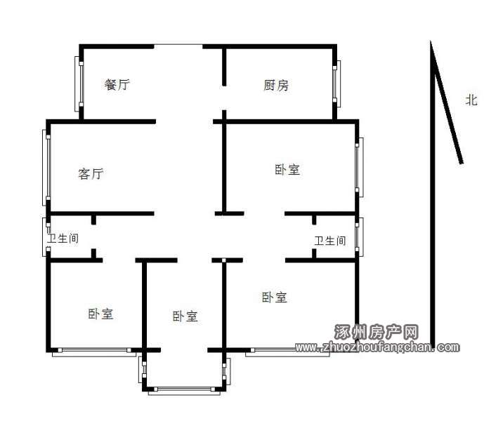
4室2厅2卫 4层/共6层

135平米 精装修

朝向南北 2000年建

实名认证:

资质认证:

所属公司:华中置业-金街店

微信扫码拨号

13141148848

查看他的店铺     给他发站内信

房源概况

发布时间:2025-05-16 浏览:367人次

  • 房屋租金1200元/月
  • 建筑面积135平米
  • 房屋户型4室2厅2卫0阳
  • 付押方式付三押一
  • 建筑年代2000年建
  • 小区地址西关新街9号(107国道汽车站旁)
  • 房屋类型住宅楼
  • 所在楼层4层/共6层
  • 装修情况精装修
  • 房屋朝向南北
  • 房屋特色家具齐全 学校周边 商业用房 随时看房
  • 房源配备√空调 √热水器 √电视机 √床铺 √沙发 √冰箱 √壁柜 √洗衣机

房源描述

华阳路107,精装板楼大四局,随时看房

室内图

户型图

乐亨小区小区概况均价:3295元/㎡ 小区详情>>
小区地址:西关新街9号(107国道汽车站旁) 区域商圈:双塔区
小区简介:涿州乐亨小区,位于双塔区西关新街9号(107国道汽车站旁),共7栋住宅楼216户,建于1996年,停车位90个,物业费低,自采暖。
乐亨小区小区地图 返回顶部>>
乐亨小区小区点评
综合评分:
1.33分 / 5分 价格:1.33分    地段:1.33分    交通:1.33分    配套:1.33分    环境:1.33分    我要点评!

涿州房产网网友

价格:1 地段:1   交通:1   配套: 1   环境:1  

乐亨旁边的臭河,20多年了也没人管。小区没物业,垃圾只有街道给清理。还违建盖了一栋楼,也没人管。

四号花店

价格:3 地段:3   交通:3   配套: 3   环境:3  

看了有一栋还是两栋是新盖的,剩下的大都是旧楼,这个地方就跟村一样

乐亨小区租金相近房源
免责声明:涿州房产网旨在为广大用户提供更多的信息无偿服务,页面所载内容及数据均由开发商或其他第三方提供,仅供用户参考和借鉴,最终以政府部门登记备案为准,请谨慎核查。如页面信息存在错误或侵权请及时联系本网站,本网站会尽快采取相应措施。联系方式:010-50976234。