欢迎来到 涿州房产网![登录] [注册]

高铁大三居、精装交付户型方正、中铁集团打造、首付22万易通勤

有电梯 附送家具 厅带阳台 发布时间:2023-12-08 1255人已浏览

125 11062元/㎡ 房源编号:4511567359 房贷计算器

3室2厅2卫 1层/共11层

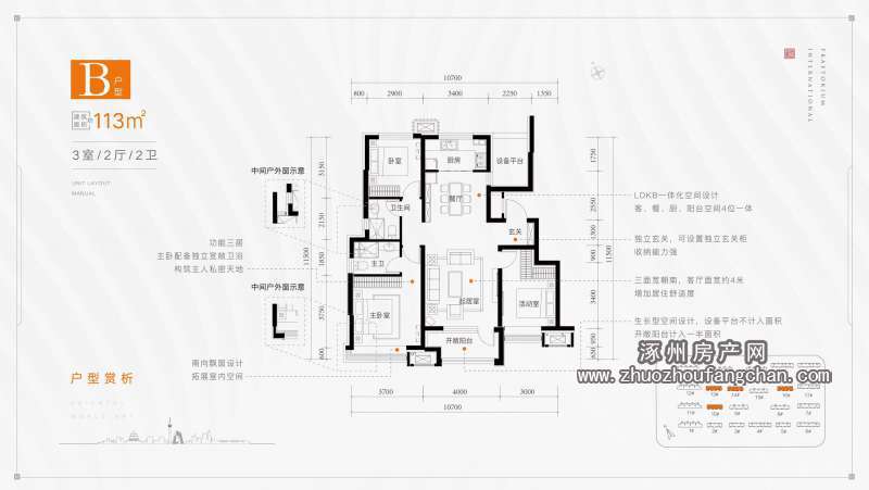
113平米 精装修

朝向南北 2023年建

  • 小区: 樾府国际
  • 位置: 涿州东站西侧腾飞大街与龙马路交汇处南行100米 地图

实名认证:

资质认证:

所属公司:华中置业-金街店

微信扫码拨号

13141148848

查看他的店铺     给他发站内信

房源概况

发布时间:2023-12-08 浏览:1255人次

  • 房屋总价125万
  • 房屋单价11062元/㎡
  • 建筑面积113平米
  • 房屋户型3室2厅2卫0阳
  • 建筑年代2023年建
  • 小区地址涿州东站西侧腾飞大街与龙马路交汇处南行100米
  • 房屋类型住宅楼
  • 房屋产权商品房
  • 所在楼层1层/共11层
  • 装修情况精装修
  • 房屋朝向南北
  • 房屋特色 有电梯 附送家具 厅带阳台

房源描述


【小区名称】: 樾府国 际 【央 企开发、精装交付,洋房户型,高层户型,多样可选】
【房屋朝向】: 南北通透
【房屋面积】: 113平米
【房屋价格】: 125万【价格可谈】
【房屋状况】: 看房找√金利√,实体现房,洋房加高层,可北京、通勤,部分已经封顶,打造智能社区,实体样板间看,户型及楼层可选性大

室内图

户型图

樾府国际小区概况均价:8660元/㎡ 小区详情>>
小区地址:涿州东站西侧腾飞大街与龙马路交汇处南行100米 区域商圈:高铁新城
小区简介: 涿州樾府国际项目是70年大产权住宅,共计22栋住宅,包括6栋16-18F小高层、16栋10-11F洋房,共1638户。 一期现房。二期2025.7.30(暂定)交房。 地下车位共1486个,地上车位共202个。公摊面积小,建筑面积段约为80-119㎡两居-三居,满足各种家庭所需。其
樾府国际小区地图 返回顶部>>
樾府国际小区点评
综合评分:
4.92分 / 5分 价格:5.00分    地段:5.00分    交通:4.95分    配套:4.77分    环境:4.86分    我要点评!

粉色纽扣~

价格:5 地段:5   交通:5   配套: 5   环境:5  

现在这个价格应该相当好了~~~

指尖星光在流浪

价格:5 地段:5   交通:5   配套: 5   环境:5  

新房比二手房强啊

樾府国际价格相近房源
免责声明:涿州房产网旨在为广大用户提供更多的信息无偿服务,页面所载内容及数据均由开发商或其他第三方提供,仅供用户参考和借鉴,最终以政府部门登记备案为准,请谨慎核查。如页面信息存在错误或侵权请及时联系本网站,本网站会尽快采取相应措施。联系方式:010-50976234。