欢迎来到 涿州房产网![登录] [注册]

范阳路 御景园 自住精装两居两卫 全齐 拎包入住

家具齐全 双卫生间 学校周边 有电梯 发布时间:2024-08-12 1341人已浏览

2100 元/月 房源编号:4510303696 付押方式:付三押一

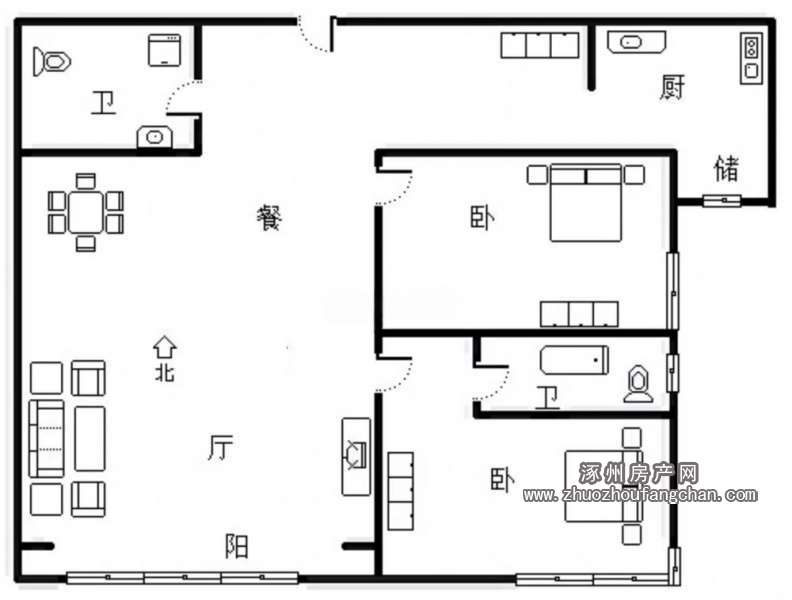
2室2厅1卫 5层/共20层

105平米 精装修

朝向东南

实名认证:

资质认证:

所属公司:汇福通128店-名流五六期底商1号楼

微信扫码拨号

15631214003

查看他的店铺     给他发站内信

房源概况

发布时间:2024-08-12 浏览:1341人次

  • 房屋租金2100元/月
  • 建筑面积105平米
  • 房屋户型2室2厅1卫0阳
  • 付押方式付三押一
  • 建筑年代
  • 小区地址范阳中路590号(天下第一州牌楼西侧)
  • 房屋类型住宅楼
  • 所在楼层5层/共20层
  • 装修情况精装修
  • 房屋朝向东南
  • 房屋特色家具齐全 双卫生间 学校周边 有电梯
  • 房源配备√空调 √热水器 √电视机 √管道煤气 √防盗门 √电梯 √床铺 √沙发 √冰箱 √壁柜 √洗衣机 √防盗网 √厨具

房源描述

小区环境很好,物业管理严谨,户型方正,全天采光,钻石广场君悦广场,繁华地段

室内图

君临天下御景园小区概况均价:8071元/㎡ 小区详情>>
小区地址:范阳中路590号(天下第一州牌楼西侧) 区域商圈:开发区
小区简介: 涿州君临天下御景园,小区位于范阳中路590号(天下第一州牌楼西侧)。高层住宅共10栋共计1316户,地理位置非常优。 君临天下御景园的设计理念就是打造品质宜居园区。君临天下御景园总占地面积100亩,总建筑面积27万平米,地上建筑面积17万平米。规划用户为1316户。
君临天下御景园小区地图 返回顶部>>
君临天下御景园小区点评
综合评分:
4.73分 / 5分 价格:4.44分    地段:4.78分    交通:4.78分    配套:4.78分    环境:4.89分    我要点评!

风轻

价格:1 地段:3   交通:3   配套: 3   环境:4  

要价太高了,200万有人要吗?还249万,真把楼房当别墅卖呢!

涿州房产网网友

价格:5 地段:5   交通:5   配套: 5   环境:5  

不错的小区

君临天下御景园租金相近房源
免责声明:涿州房产网旨在为广大用户提供更多的信息无偿服务,页面所载内容及数据均由开发商或其他第三方提供,仅供用户参考和借鉴,最终以政府部门登记备案为准,请谨慎核查。如页面信息存在错误或侵权请及时联系本网站,本网站会尽快采取相应措施。联系方式:010-50976234。