搜索帮助
找房发布
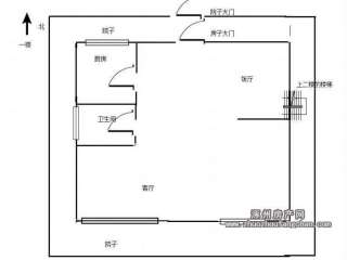
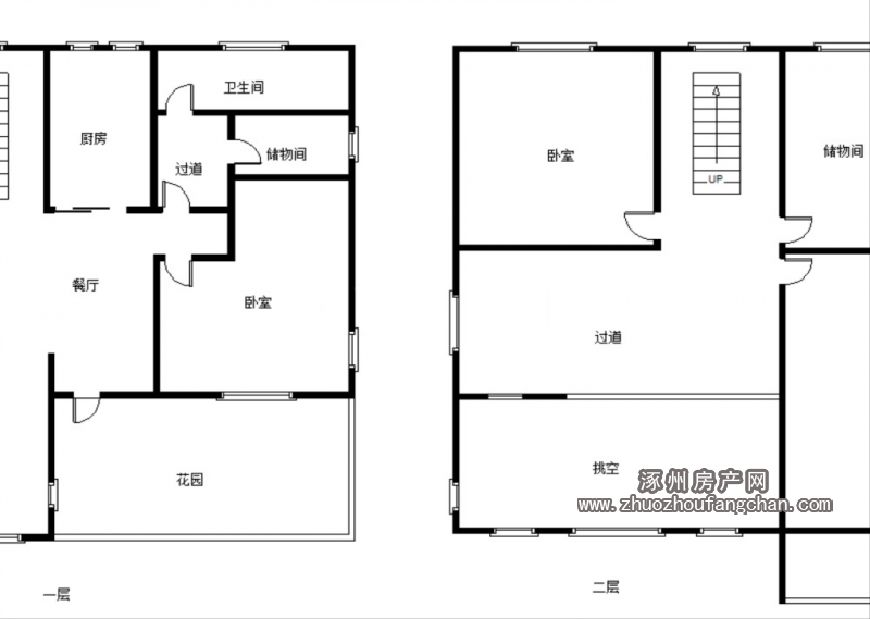
竹语堂 户型图(建筑面积)
竹语堂
楼盘推荐:天地新城启承 天保智慧城 华远和府(海蓝城) 樾府国际 德远云景 金品世家 滨江郦城 华侨城 中冶未来城二期 鹏渤印象城 万科城际之光 紫竹园 鹏渤天著玖璋台 柏林顿水郡 金域中央 尚北家园 凯兴悦享城 华融现代城 牛津小镇 京都华府 润卓天伦湾 三利中和城 祥云里 天伦湾凤麟府 汇元玖号院 锦绣雅苑 中房锦园 鹏渤上河天著 学府澜湾三期 呈颐园 德信御府