欢迎来到 涿州房产网![登录] [注册]

53万买二康旁南北大三居双卫 金地小区采光好 税费低

双卫生间 集体供暖 一梯两户 证满五年 发布时间:2025-10-19 21人已浏览

55 3929元/㎡ 房源编号:4511583290 房贷计算器

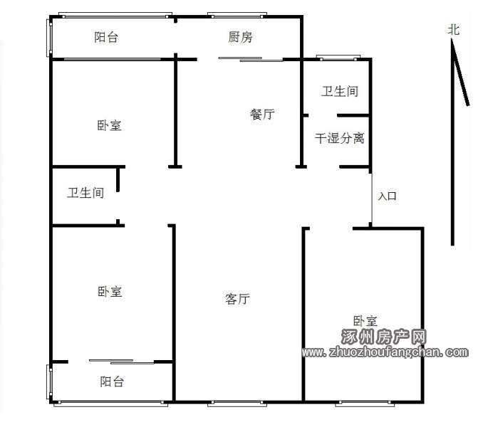
3室2厅2卫 6层/共6层

140平米 精装修

朝向南北

  • 小区: 金地小区
  • 位置: 教军场街金地小区(东关新村小区隔壁) 地图

实名认证:

资质认证:

所属公司:华中置业-碧萝湾底商

微信扫码拨号

18531291570

查看他的店铺     给他发站内信

房源概况

发布时间:2025-10-19 浏览:21人次

  • 房屋总价55万
  • 房屋单价3929元/㎡
  • 建筑面积140平米
  • 房屋户型3室2厅2卫2阳
  • 建筑年代
  • 小区地址教军场街金地小区(东关新村小区隔壁)
  • 房屋类型住宅楼
  • 房屋产权商品房
  • 所在楼层6层/共6层
  • 装修情况精装修
  • 房屋朝向南北
  • 房屋特色双卫生间 集体供暖 一梯两户 证满五年

房源描述

1满五
2精装送部分
3售房心态稳定

室内图

户型图

金地小区小区概况均价:4643元/㎡ 小区详情>>
小区地址:教军场街金地小区(东关新村小区隔壁) 区域商圈:清凉寺区
小区简介:涿州金地小区地理位置优,属于土地局家属院,是大产权,小区有南门和北门,内部又一个隔离门,小区一共6栋6层板楼,南边的2栋是5层的旧楼,北边4栋是新楼,有地下室,3居室和2居室居多,有车库。
金地小区小区地图 返回顶部>>
金地小区小区点评
综合评分:
0.00分 / 5分 价格:0.00分    地段:0.00分    交通:0.00分    配套:0.00分    环境:0.00分    我要点评!
金地小区价格相近房源
免责声明:涿州房产网旨在为广大用户提供更多的信息无偿服务,页面所载内容及数据均由开发商或其他第三方提供,仅供用户参考和借鉴,最终以政府部门登记备案为准,请谨慎核查。如页面信息存在错误或侵权请及时联系本网站,本网站会尽快采取相应措施。联系方式:010-50976234。