欢迎来到 涿州房产网![登录] [注册]

急售!市区 单价7000 联排别墅 集体供暖 四室三厅五卫

集体供暖 一层带院 有电梯 证满两年 发布时间:2025-08-05 278人已浏览

175 7032元/㎡ 房源编号:4511581896 房贷计算器

4室3厅5卫 1层/共1层

248.88平米 毛坯

朝向南北

  • 小区: 嵘御航城
  • 位置: 龙马路59号(东兴南街与冠云路交叉路口南300米) 地图

实名认证:

资质认证:

所属公司:汇福通128店-名流五六期底商1号楼

微信扫码拨号

15631214003

查看他的店铺     给他发站内信

房源概况

发布时间:2025-08-05 浏览:278人次

  • 房屋总价175万
  • 房屋单价7032元/㎡
  • 建筑面积248.88平米
  • 房屋户型4室3厅5卫2阳
  • 建筑年代
  • 小区地址龙马路59号(东兴南街与冠云路交叉路口南300米)
  • 房屋类型住宅楼
  • 房屋产权商品房
  • 所在楼层1层/共1层
  • 装修情况毛坯
  • 房屋朝向南北
  • 房屋特色集体供暖 一层带院 有电梯 证满两年

房源描述

捡漏房源,房主诚心出售

室内图

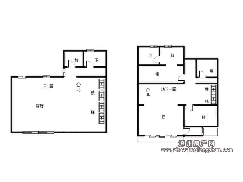
户型图

嵘御航城小区概况均价:6481元/㎡ 小区详情>>
小区地址:龙马路59号(东兴南街与冠云路交叉路口南300米) 区域商圈:清凉寺区
小区简介:  涿州嵘御航城,小区户型由建筑面积96㎡—250㎡两居、三居、四居、空中花园跃层、一层一户楼中楼跃层及联排别墅组成,充分满足了市场不同消费群体的需求。 嵘御航城总占地105亩,建筑面积约17万平方米,绿化约40%,容积率约1.45,总户数约1200户。目前一期总户数约
嵘御航城小区地图 返回顶部>>
嵘御航城小区点评
综合评分:
3.55分 / 5分 价格:3.25分    地段:3.00分    交通:3.00分    配套:4.25分    环境:4.25分    我要点评!

涿州房产网网友

价格:3 地段:3   交通:3   配套: 4   环境:4  

从户型来看,真的不是很好,卧室全在一起,私人空间不好

涿州房产网网友

价格:4 地段:3   交通:3   配套: 4   环境:4  

房子质量不错在涿州来说,基本大都是大平米

嵘御航城价格相近房源
免责声明:涿州房产网旨在为广大用户提供更多的信息无偿服务,页面所载内容及数据均由开发商或其他第三方提供,仅供用户参考和借鉴,最终以政府部门登记备案为准,请谨慎核查。如页面信息存在错误或侵权请及时联系本网站,本网站会尽快采取相应措施。联系方式:010-50976234。