欢迎来到 涿州房产网![登录] [注册]

品质别墅区 交通便利 户型方正 证满 看房方便

私家车位 双卫生间 附送家具 证满两年 发布时间:2025-07-26 230人已浏览

218 10481元/㎡ 房源编号:4511581730 房贷计算器

4室2厅3卫 3层/共5层

208平米 精装修

朝向南北

实名认证:

资质认证:

所属公司:1-2

微信扫码拨号

17317031841

查看他的店铺     给他发站内信

房源概况

发布时间:2025-07-26 浏览:230人次

  • 房屋总价218万
  • 房屋单价10481元/㎡
  • 建筑面积208平米
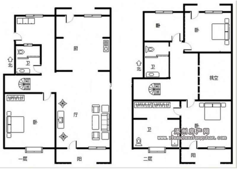
  • 房屋户型4室2厅3卫1阳
  • 建筑年代
  • 小区地址东兴北街和平安北街延长线
  • 房屋类型住宅楼
  • 房屋产权
  • 所在楼层3层/共5层
  • 装修情况精装修
  • 房屋朝向南北
  • 房屋特色私家车位 双卫生间 附送家具 证满两年

房源描述

繁华地段 品质小区 环境优美 精装修 证满 随时看房

室内图

户型图

香邑溪谷原墅小区概况均价:10054元/㎡ 小区详情>>
小区地址:东兴北街和平安北街延长线 区域商圈:德信文化公园
小区简介:涿州香邑溪谷原墅分南北两个区域,南区建设高层居民住宅楼,北区建设4-6层叠墅。共11栋叠拼别墅共计168户,小区自采暖。
香邑溪谷原墅小区地图 返回顶部>>
香邑溪谷原墅小区点评
综合评分:
4.73分 / 5分 价格:4.67分    地段:4.67分    交通:4.67分    配套:4.67分    环境:5.00分    我要点评!

润家房产

价格:4 地段:4   交通:4   配套: 4   环境:5  

部分别墅下叠一跃二带地下室车库。 小区东南侧是涿州市政德信公园,南侧400米有涿州中医院,西南侧3.3公里有保定市二康。 小区门口50米有25路市政公交车,东行4.5公里是京港澳高速,再东行3公里向南是京广高铁涿州东站。

李娜5342

价格:5 地段:5   交通:5   配套: 5   环境:5  

价格有点贵,房子用料好!今年奋斗的目标,地段好配套好小区圈子也好!

香邑溪谷原墅价格相近房源
免责声明:涿州房产网旨在为广大用户提供更多的信息无偿服务,页面所载内容及数据均由开发商或其他第三方提供,仅供用户参考和借鉴,最终以政府部门登记备案为准,请谨慎核查。如页面信息存在错误或侵权请及时联系本网站,本网站会尽快采取相应措施。联系方式:010-50976234。