欢迎来到 涿州房产网![登录] [注册]

范阳路二康旁!65万买好楼层3层!南北通透三居,联合二号院,

集体供暖 一梯两户 附送家具 证满两年 发布时间:2025-07-17 200人已浏览

65 6019元/㎡ 房源编号:4511581585 房贷计算器

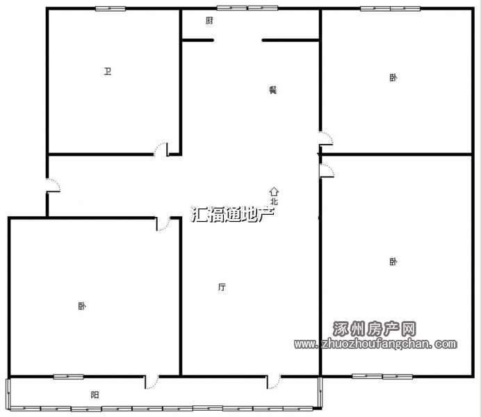
3室2厅1卫 3层/共6层

108平米 精装修

朝向南北

实名认证:

资质认证:

所属公司:汇福通地产-开发区朝阳路95号

微信扫码拨号

17736298380

查看他的店铺     给他发站内信

房源概况

发布时间:2025-07-17 浏览:200人次

  • 房屋总价65万
  • 房屋单价6019元/㎡
  • 建筑面积108平米
  • 房屋户型3室2厅1卫1阳
  • 建筑年代
  • 小区地址范阳中路73号(二康东200米)
  • 房屋类型住宅楼
  • 房屋产权商品房
  • 所在楼层3层/共6层
  • 装修情况精装修
  • 房屋朝向南北
  • 房屋特色集体供暖 一梯两户 附送家具 证满两年

房源描述

范阳路二康旁!65万买好楼层3层!南北通透三居,联合二号院,满二税少,看房方便
看房电话17736298380,可加V信:ydy9876

室内图

户型图

联合二号院小区概况均价:5087元/㎡ 小区详情>>
小区地址:范阳中路73号(二康东200米) 区域商圈:清凉寺区
小区简介: 涿州联合二号院小区位于范阳路中路,不远就是保定市第二人民医院,门口就是838公交站,交通十分方便,小区范阳路入口,进出一个门口,小区停车紧张,小区几乎没有绿化,一共8栋6层板楼,自里往外一次排开,最门口是8号楼,都是红砖结构,属于涿州联合地产较早的
联合二号院小区地图 返回顶部>>
联合二号院小区点评
综合评分:
0.00分 / 5分 价格:0.00分    地段:0.00分    交通:0.00分    配套:0.00分    环境:0.00分    我要点评!
联合二号院价格相近房源
免责声明:涿州房产网旨在为广大用户提供更多的信息无偿服务,页面所载内容及数据均由开发商或其他第三方提供,仅供用户参考和借鉴,最终以政府部门登记备案为准,请谨慎核查。如页面信息存在错误或侵权请及时联系本网站,本网站会尽快采取相应措施。联系方式:010-50976234。