欢迎来到 涿州房产网![登录] [注册]

水乡园 板楼2层 集中供暖 3室2厅2卫 明厨明卫 房主急售

集体供暖 证满五年 发布时间:2024-01-04 1564人已浏览

120 8000元/㎡ 房源编号:4511568382 房贷计算器

3室2厅2卫 2层/共6层

150平米 精装修

朝向南北

实名认证:

资质认证:

所属公司:汇福通-西丁小学店

微信扫码拨号

13582056850

查看他的店铺     给他发站内信

房源概况

发布时间:2024-01-04 浏览:1564人次

  • 房屋总价120万
  • 房屋单价8000元/㎡
  • 建筑面积150平米
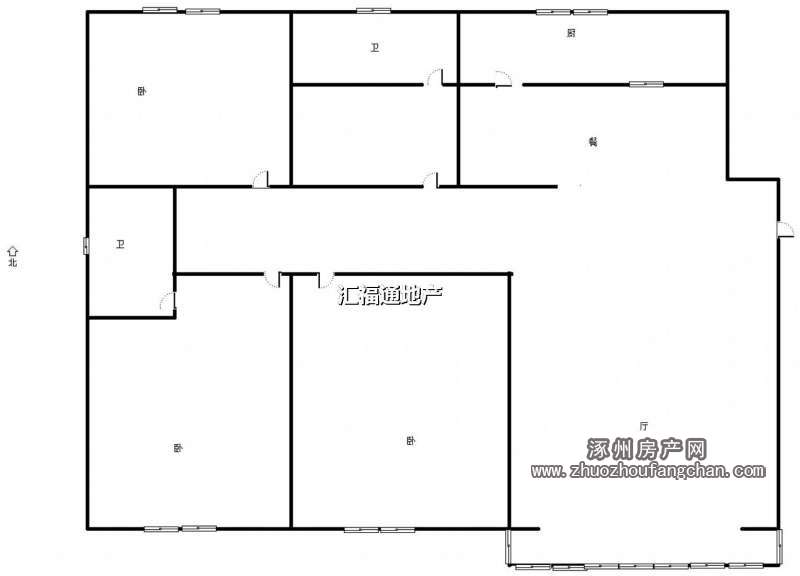
  • 房屋户型3室2厅2卫1阳
  • 建筑年代
  • 小区地址朝阳路41号
  • 房屋类型住宅楼
  • 房屋产权商品房
  • 所在楼层2层/共6层
  • 装修情况精装修
  • 房屋朝向南北
  • 房屋特色 集体供暖 证满五年

房源描述

水乡园 板楼2层 集中供暖 3室2厅2卫 明厨明卫 房主急售详情咨询13582056850

室内图

户型图

水乡园小区概况均价:5845元/㎡ 小区详情>>
小区地址:朝阳路41号 区域商圈:开发区
小区简介:涿州水乡园,位于开发区朝阳路41号。小区一共8栋住宅楼280户(6栋5层板楼,1栋11层小高层,1栋17层高层),建于2005年,集体供暖,物业费板楼0.5元平米/月,停车位120个。
水乡园小区地图 返回顶部>>
水乡园小区点评
综合评分:
0.00分 / 5分 价格:0.00分    地段:0.00分    交通:0.00分    配套:0.00分    环境:0.00分    我要点评!
水乡园价格相近房源
免责声明:涿州房产网旨在为广大用户提供更多的信息无偿服务,页面所载内容及数据均由开发商或其他第三方提供,仅供用户参考和借鉴,最终以政府部门登记备案为准,请谨慎核查。如页面信息存在错误或侵权请及时联系本网站,本网站会尽快采取相应措施。联系方式:010-50976234。